
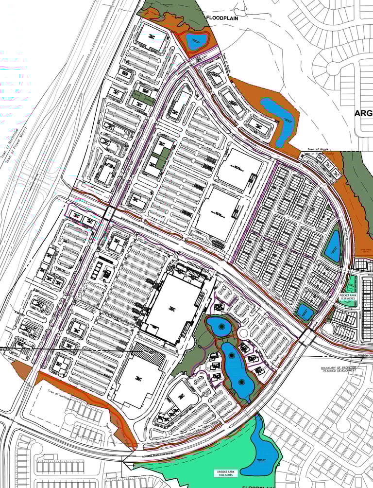
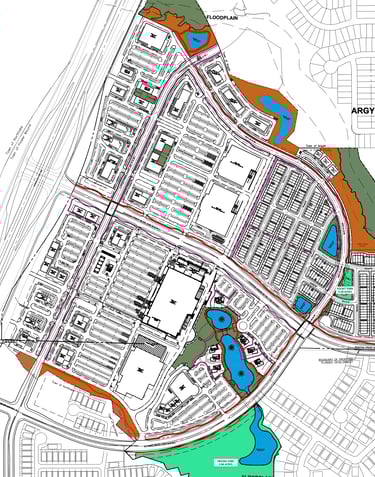
Premier Retail Destination on I-35W — Anchored by Five National Leaders
MONARCH CROSSING is North Texas's newest and most dynamic retail destination, ideally located along I-35W in Flower Mound near Alliance Executive Airport Intermodal facility.
Designed to serve one of the fastest-growing trade areas in the region, MONARCH CROSSING brings together national retailers, boutique shopping, and scenic public spaces in one exceptional location.
MONARCH CROSSING Offers Exceptional Opportunities
Retailers and service brands seeking premier exposure
Restaurants and cafes with scenic patio spaces overlooking the water featureOpportunity to buy, build to suit, or ground lease high visibility sites.
Health, beauty, and specialty retailers positioned near high-end residential areas
Four hard freeway corners. Two Major overpasses with 4 Freeway on and off ramps to the site coming with the New I-35W Expansion Project Underway.
This is one of the Last Opportunities to secure a position in a Highly Underserved Area located in the Heart of the Booming D/FW Market on I-35W the "NAFTA" hwy.
Demographics
Rapid population growth - Fastest in the US
High median income levels - Median monthly household income: $147,490
Expanding residential base within minutes of site. 30,000 home permits currently
Easy access from both the DFW Airport and Fort Worth metro area
Convenient to 4 major universities
Bring your business to the newest center of life, commerce, and connection in North Texas.
LOCATION
The site is located one 1 mile north of Texas Motor Speedway and the Alliance Executive Airport Industrial Multi Modal Complex on I-35W.
20.6 miles to Dallas-Fort Worth International Airport
Northeast of Lake Grapevine
320 acres of Freeway Frontage in Hottest Market in D/FW. Flower Mound's "Front Door" Development
Big Box Stores
Pending/to be announced
Health Services
Pending/to be announced
Dining
Pending/to be announced
Professional Services
Pending/to be announced
Fashion
Pending/to be announced




Our Design
MONARCH CROSSING's retail district is thoughtfully designed to create a modern, walkable shopping experience. With wide landscaped promenades, shaded seating areas, and elegant architectural details, the center blends convenience with beauty for visitors and retailers alike.
Bring your business to the newest center of life, commerce, and connection in North Texas.
EXPLORE MONARCH
RETAIL
RESIDENTIAL
WHY MONARCH?
More than a place to live or shop, MONARCH CROSSING is a celebration of renewal, migration, and natural beauty.
How can I begin to describe my time with Poveda... It was simply life-changing! I always imagined that Bali would be a breathtaking destination, but thanks to Poveda, I was able to not just experience the culture, but have once-in-a-lifetime memories. I got so much more than I ever anticipated from my holiday.
- Alice Bloomberg
WHAT THEY SAY ABOUT US
SUBSCRIBE
Subscribe to our newsletter to always be the first to hear about recent news, offers and progress at MONARCH CROSSING.



























